Vom Lager zum Wohnhaus Strukturwandel in Oberkassel

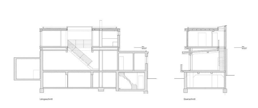
Ehemals mit Laderampe versehen und gewerblich genutzt, wird das historische Gebäude nach dem Krieg erstmals zu einem eingeschossigen Wohnhaus umgebaut. Das spannungsvolle Ensemble aus Gewerbebau des letzten Jahrhunderts vergrößert sich erneut mit einer modernen Erweiterung zum Wohnhaus. Es liegt zentral, bleibt aber dennoch ein ruhiger Ort zum Leben, der besonders geschützt wird durch seinen Innenhof. Das neue Konzept trägt dem Wunsch seiner jungen Bewohner nach mehr Wohnfläche und einer modernen Lebensart Rechnung. Die Erweiterung mit einem Holzleichtbau erlaubt offenes Wohnen, Essen und Kochen im Erdgeschoss. Über eine leichte Stahltreppenkonstruktion ist das Obergeschoss erreichbar, wo sich ungestört Schlafraum und Badezimmer nutzen lassen.

Anschrift:

Philipp Düsselberg Architekten

Drususstraße 13a

40459 Düsseldorf

Kontakt:

office@duesselberg.com

T: 0211 – 169 70 421

F: T: 0211 – 169 70 429